店舗情報館 大阪の物件専門サイト

運営:「関西インベスト」  店舗物件ついてお気軽にご相談ください
  • 06-6766-2016
  • お問い合わせ・資料請求

Property Details

待望のオフィス街×居抜きヽ(^o^)丿オフィス街でスタートするなら見逃し厳禁です!!

物件ID:A013467

  • 印刷
  • 路面店舗
  • 1階店舗
  • 居抜き
  • オフィス街

CHECK

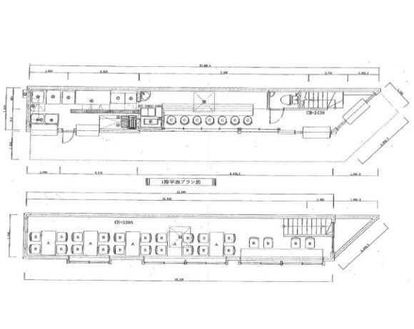
人気のオフィス街、北浜・淀屋橋エリアで

ラーメン店居抜き物件が出ました!!

2フロア合計14坪でそのまま使える内装&厨房設備も残っており、

即・開・業も夢ではございません。

📍堺筋線「北浜駅」、御堂筋線「淀屋橋駅」からもアクセス抜群!

オフィス街の中心に位置しており、平日はランチ激戦区!

オフィスワーカーの胃袋を掴めば、リピーター続出間違いナシ!

コンパクト=無限の可能性

小さく初めてじっくり育てる、理想の1店舗目に…

業種諸条件等お気軽にお問合せくださいませ。

 

※保証会社・火災保険加入要 ※定期借家契約10年

※写真は営業中の物になりますので、現状とは異なる場合がございます。

※万一成約済みや貸主の都合で取引条件の変更があった場合はご了承下さい。

物件概要

所在地
大阪市中央区平野町
最寄り駅・徒歩
  • 大阪メトロ御堂筋線「淀屋橋駅」徒歩6分
賃料
400,000円(税込価格440,000円)
共益費
敷金
10ヶ月
解約引き
30%(別途税)
面積
延約14坪
坪単価
約31,429円
階数
1-2階
譲渡金
希望有
おすすめの業態
  • ダイニングバー
  • テイクアウト
  • バー
  • 軽飲食
  • 重飲食
  • 飲食店
  • お電話にて物件IDをお伝え下さい。06-6766-2016
  • この物件のお問い合わせ
  • お電話にて物件IDをお伝え下さい。06-6766-2016
  • この物件のお問い合わせ

当社のご案内

店舗物件をお探しの方、お気軽にお立ち寄りください!

運営会社
株式会社 関西インベスト
所在地
〒542-0012
大阪府大阪市中央区谷町7-3-4新谷町第3ビル 1F
営業時間
9:30~18:00
※定休日:土曜日・日曜・祝日
電話番号
06-6766-2016
FAX番号
06-6766-2017
  • 06-6766-2016 06-6766-2016
  • 弊社へのお問い合わせ