店舗情報館 大阪の物件専門サイト

運営:「関西インベスト」  店舗物件ついてお気軽にご相談ください
  • 06-6766-2016
  • お問い合わせ・資料請求

Property Details

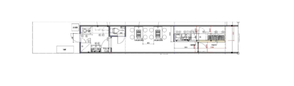
R26号線沿いの好立地テナント!!テナント仕様そのまま居抜きです(*ノωノ)

物件ID:A013493

  • 印刷
  • 路面店舗
  • 1階店舗
  • 駅近
  • 居抜き
  • 大通り沿い

CHECK

大阪の中心地「なんば」も徒歩圏内、

大国町駅からわずか徒歩1分の超好立地に、

居抜き物件が登場しました★

国道26号線沿いに面しており、圧倒的な視認性と集客力が魅力です。

テナント仕様のコンパクトながら無駄なく使える路面物件。

ランチ~ディナー、さらにはテイクアウトやデリバリーにも適した立地。

アイデアと情熱をカタチにできる一軒が、ここにあります。

業種諸条件等お気軽にお問合せくださいませ。

 

※保証会社・火災保険加入要 ※定期借家契約3年

※解約違約金:3年以内-賃料・共益費の3ヶ月分 ※ハウスクリーニング代金:66,000円

※ゴミ回収代:6,050円

※万一成約済みや貸主の都合で取引条件の変更があった場合はご了承下さい。

物件概要

所在地
大阪市浪速区戎本町
最寄り駅・徒歩
  • 大阪メトロ各線「大国町駅」徒歩1分
  • 南海本線「今宮戎駅」徒歩5分
  • JR大阪環状線「今宮駅」徒歩6分
賃料
220,000円(税込価格242,000円)
共益費
15,000円(税込価格16,500円)
敷金
2ヶ月
礼金
3.3ヶ月
面積
約12.23坪
坪単価
約20,167円
階数
1階
譲渡金
-
おすすめの業態
  • サービス・その他
  • ダイニングバー
  • テイクアウト
  • バー
  • 美容関係
  • 軽飲食
  • 飲食店
  • お電話にて物件IDをお伝え下さい。06-6766-2016
  • この物件のお問い合わせ
  • お電話にて物件IDをお伝え下さい。06-6766-2016
  • この物件のお問い合わせ

当社のご案内

店舗物件をお探しの方、お気軽にお立ち寄りください!

運営会社
株式会社 関西インベスト
所在地
〒542-0012
大阪府大阪市中央区谷町7-3-4新谷町第3ビル 1F
営業時間
9:30~18:00
※定休日:土曜日・日曜・祝日
電話番号
06-6766-2016
FAX番号
06-6766-2017
  • 06-6766-2016 06-6766-2016
  • 弊社へのお問い合わせ