運営:関西インべスト
HOME
物件一覧
開店・開業ノウハウ
物件を貸したいオーナー様
開店・開業実績
会社概要
運営:「関西インベスト」 店舗物件ついてお気軽にご相談ください
HOME
物件一覧
開店・開業ノウハウ
物件を貸したいオーナー様
開店・開業実績
会社概要
物件詳細
Property Details
トップページ
>
物件一覧
>
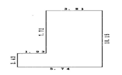
時短でオープン目指せます!!集客しやすい1階の飲食店跡(‘◇’)ゞ
時短でオープン目指せます!!集客しやすい1階の飲食店跡(‘◇’)ゞ
掲載終了しました。
当社のご案内
店舗物件をお探しの方、お気軽にお立ち寄りください!
運営会社
株式会社 関西インベスト
所在地
〒542-0012
大阪府大阪市中央区谷町7-3-4新谷町第3ビル 1F
営業時間
9:30~18:00
※定休日:土曜日・日曜・祝日
電話番号
06-6766-2016
FAX番号
06-6766-2017