店舗情報館 大阪の物件専門サイト

運営:「関西インベスト」  店舗物件ついてお気軽にご相談ください
  • 06-6766-2016
  • お問い合わせ・資料請求

Property Details

【堺筋】ばっちり見える路面テナント★通行量・注目度申し分なし!!

物件ID:A013641

  • 印刷
  • 路面店舗
  • 1階店舗
  • 大通り沿い
  • オフィス街

CHECK

毎日多くの働く人や買い物客が行き交う堺筋に面する路面店。

通行量・注目度ともに申し分ございませんヽ(^o^)丿

コンパクトなスペースながら、しっかりとした存在感。

物販やサービスショップなど、小規模ながらもブランド発信にはぴったりです。

堺筋に面しているというだけで視認性と信頼感はバツグン。

小さくても光る個性派店舗を出したい方や、

ブランドのアンテナショップを考えている方にもおすすめです。

業種・諸条件等お気軽にお問合せ下さいませ。

 

※保証会社・火災保険加入要 ※水道代:2,970円(税込)

※カギ代:22,000円(法人の場合:33,000円) ※防虫代:22,000円(法人の場合:33,000円)

※機械警備費:3,300円(税込)

※万一成約済みや貸主の都合で取引条件の変更があった場合はご了承下さい。

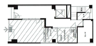
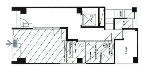
物件概要

所在地
大阪市中央区瓦町
最寄り駅・徒歩
  • 大阪メトロ堺筋線「堺筋本町駅」徒歩3分
賃料
330,000円(税込価格363,000円)
共益費
3,300円(税込価格3,630円)
敷金
5ヶ月
礼金
2.2ヶ月
面積
約9.98坪
坪単価
約40,333円
階数
1階
譲渡金
-
おすすめの業態
  • サービス・その他
  • 物販
  • 美容関係
  • お電話にて物件IDをお伝え下さい。06-6766-2016
  • この物件のお問い合わせ
  • お電話にて物件IDをお伝え下さい。06-6766-2016
  • この物件のお問い合わせ

当社のご案内

店舗物件をお探しの方、お気軽にお立ち寄りください!

運営会社
株式会社 関西インベスト
所在地
〒542-0012
大阪府大阪市中央区谷町7-3-4新谷町第3ビル 1F
営業時間
9:30~18:00
※定休日:土曜日・日曜・祝日
電話番号
06-6766-2016
FAX番号
06-6766-2017
  • 06-6766-2016 06-6766-2016
  • 弊社へのお問い合わせ