店舗情報館 大阪の物件専門サイト

運営:「関西インベスト」  店舗物件ついてお気軽にご相談ください
  • 06-6766-2016
  • お問い合わせ・資料請求

Property Details

○キタ○路地裏に潜む隠れ家立地で出店チャンス!!

物件ID:A013646

  • 印刷
  • 路面店舗
  • 1階店舗
  • 一棟貸

CHECK

梅田エリアの中でも、知る人ぞ知る路地にひっそりと佇む一棟物件。

通りの喧騒からほんの少し奥まったこの立地こそ、

隠れ家感を演出したいお店には絶好のチャンスですヽ(^o^)丿

🍶【路地裏立地の魅力ポイント】

・「知る人ぞ知る」雰囲気でリピーターが付きやすい!

・一歩足を踏み入れた瞬間に“非日常”を感じさせられる空間づくりができる。

・夜はネオンや提灯の灯りが映え、思わず写真を撮りたくなる雰囲気に。

・静かな環境で、落ち着いたバー・スナック・和食・小料理店に最適!

業種諸条件等お気軽にお問い合わせください。

 

※火災保険加入要   ※保証会社加入要

※定期借家契約10年

※万一成約済みや貸主の都合で取引条件の変更があった場合はご了承下さい。

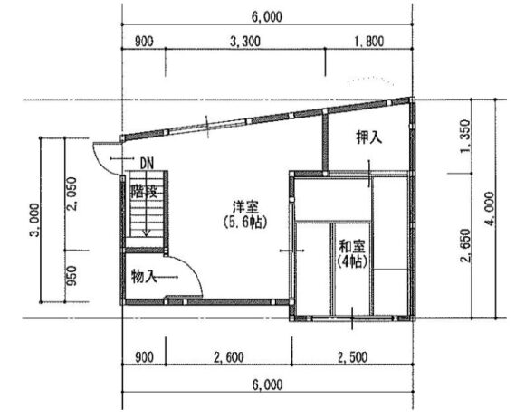
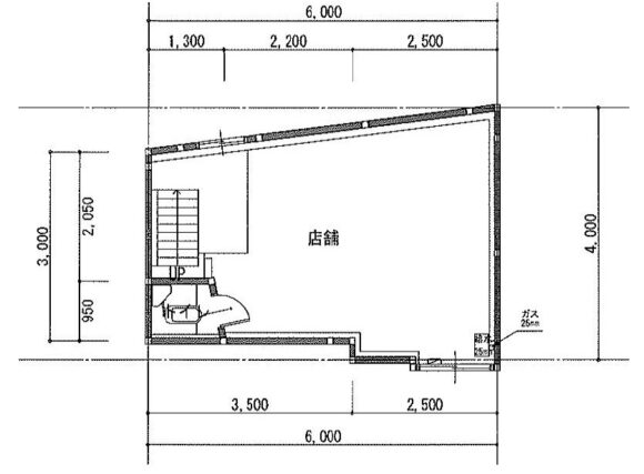
物件概要

所在地
大阪市北区兎我野町
最寄り駅・徒歩
  • 大阪メトロ谷町線「東梅田駅」徒歩5分
  • 各線「梅田駅」徒歩8分
賃料
150,000円(税込価格165,000円)
共益費
保証金
100万円
解約引き
スライド
面積
延約12.66坪
坪単価
約13,750円
階数
1-2階
譲渡金
-
おすすめの業態
  • サービス・その他
  • ダイニングバー
  • バー
  • 物販
  • 美容関係
  • 軽飲食
  • 飲食店
  • お電話にて物件IDをお伝え下さい。06-6766-2016
  • この物件のお問い合わせ
  • お電話にて物件IDをお伝え下さい。06-6766-2016
  • この物件のお問い合わせ

当社のご案内

店舗物件をお探しの方、お気軽にお立ち寄りください!

運営会社
株式会社 関西インベスト
所在地
〒542-0012
大阪府大阪市中央区谷町7-3-4新谷町第3ビル 1F
営業時間
9:30~18:00
※定休日:土曜日・日曜・祝日
電話番号
06-6766-2016
FAX番号
06-6766-2017
  • 06-6766-2016 06-6766-2016
  • 弊社へのお問い合わせ