店舗情報館 大阪の物件専門サイト

運営:「関西インベスト」  店舗物件ついてお気軽にご相談ください
  • 06-6766-2016
  • お問い合わせ・資料請求

Property Details

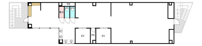
新大阪駅スグ!40坪超のワンフロアーを独占ヽ(^o^)丿

物件ID:A013952

  • 印刷
  • 内装美品
  • 駅近
  • ワンフロア
  • 希少物件

CHECK

新大阪駅から徒歩すぐ!

アクセス抜群のクリニックビル内に、約42坪の大型テナントが登場!

◎ 美容室・アイラッシュ・ネイル・エステなど幅広く歓迎

◎ 稀少な広さ42坪で、複数メニュー展開やスタッフ複数名でも対応可能

◎ 美容に適した落ち着いたビル環境

◎ 新大阪駅からすぐの好立地で集客力◎

賃料や設備などの詳細はお気軽にお問い合わせください。

美容業で独立・多店舗展開をご検討中の方は、ぜひ一度ご内覧を!

美容室でご検討の場合は、優遇条件にて交渉可能です(^_-)-☆

 

※火災保険加入要 ※サブリース物件

※定期借家契約10年

※万一成約済みや貸主の都合で取引条件の変更があった場合はご了承下さい。

物件概要

所在地
大阪市東淀川区東中島
最寄り駅・徒歩
  • 大阪メトロ御堂筋線「新大阪駅」徒歩1分
賃料
527,273円(税込価格580,000円)
共益費
敷金
6ヶ月
礼金
3.3ヶ月
面積
約42.23坪
坪単価
約13,810円
階数
5階
譲渡金
-
おすすめの業態
  • サービス・その他
  • 学習塾
  • 福祉・医療関係
  • 美容関係
  • お電話にて物件IDをお伝え下さい。06-6766-2016
  • この物件のお問い合わせ
  • お電話にて物件IDをお伝え下さい。06-6766-2016
  • この物件のお問い合わせ

当社のご案内

店舗物件をお探しの方、お気軽にお立ち寄りください!

運営会社
株式会社 関西インベスト
所在地
〒542-0012
大阪府大阪市中央区谷町7-3-4新谷町第3ビル 1F
営業時間
9:30~18:00
※定休日:土曜日・日曜・祝日
電話番号
06-6766-2016
FAX番号
06-6766-2017
  • 06-6766-2016 06-6766-2016
  • 弊社へのお問い合わせ