店舗情報館 大阪の物件専門サイト

運営:「関西インベスト」  店舗物件ついてお気軽にご相談ください
  • 06-6766-2016
  • お問い合わせ・資料請求

Property Details

視認性バツグン◎玉造筋×駅近=集客力の高い好立地♪

物件ID:A013558

  • 印刷
  • スケルトン
  • 路面店舗
  • 1階店舗
  • 駅近
  • 重飲食相談

CHECK

駅からわずか2分の路面店★

通勤・通学・地元客など幅広い層の流入が見込める好立地テナント。

🏙【ここが魅力!】

✅ 玉造筋沿いの1階店舗=とにかく目立つ!

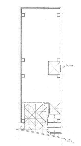
✅ 約86.6㎡(約26坪)スケルトン渡しで自由なレイアウトが可能

✅ 物販・サービス業・軽飲食など多業種に対応

✅ 前面ガラス設置可!看板効果でさらに集客アップ

✅ 近隣には住宅・オフィス・学校が混在し、昼夜問わず安定した人の流れあり

スケルトン仕様なので、アイデア次第で理想の空間に仕上げられます。

玉造エリアでこれだけ目立つ立地の物件はなかなかございません。

お店づくりをスタートするなら、ここからです!(^^)!

業種諸条件等お気軽にお問合せくださいませ。

 

※保証会社・火災保険加入要 ※違約金:1年未満‐総賃料2ヶ月分 2年未満-1ヵ月分

※写真は営業中の物になりますので、現状とは異なる場合がございます。
※万一成約済みや貸主の都合で取引条件の変更があった場合はご了承下さい。

物件概要

所在地
大阪市天王寺区玉造本町
最寄り駅・徒歩
  • JR大阪環状線「玉造駅」徒歩2分
賃料
300,000円(税込価格330,000円)
管理費
10,000円(税込価格11,000円)
敷金
-
礼金
275万円
面積
約26.19坪
坪単価
約12,692円
階数
1階
譲渡金
-
おすすめの業態
  • サービス・その他
  • ダイニングバー
  • テイクアウト
  • 学習塾
  • 物販
  • 美容関係
  • 軽飲食
  • 重飲食
  • 飲食店
  • お電話にて物件IDをお伝え下さい。06-6766-2016
  • この物件のお問い合わせ
  • お電話にて物件IDをお伝え下さい。06-6766-2016
  • この物件のお問い合わせ

当社のご案内

店舗物件をお探しの方、お気軽にお立ち寄りください!

運営会社
株式会社 関西インベスト
所在地
〒542-0012
大阪府大阪市中央区谷町7-3-4新谷町第3ビル 1F
営業時間
9:30~18:00
※定休日:土曜日・日曜・祝日
電話番号
06-6766-2016
FAX番号
06-6766-2017
  • 06-6766-2016 06-6766-2016
  • 弊社へのお問い合わせ