店舗情報館 大阪の物件専門サイト

運営:「関西インベスト」  店舗物件ついてお気軽にご相談ください
  • 06-6766-2016
  • お問い合わせ・資料請求

Property Details

アイラッシュサロン居抜き★ワンフロア・ワンテナント(*^^*)

物件ID:A013672

  • 印刷
  • 内装美品
  • 駅近
  • 居抜き
  • 2WAYアクセス
  • ワンフロア

CHECK

心斎橋駅からすぐの好立地にて、

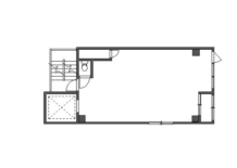
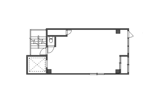
アイラッシュサロン居抜き・約15坪の4階テナントが募集開始です。

同ビル内には美容系サロンが多数入居しており、美容集客と相性の良い環境。

内装をそのまま活かしてスピーディーな開業が可能(^_-)-☆

独立や増店をお考えの方に最適です。

人気エリアの居抜き物件につき、ぜひお早めにご検討ください。

 

※個別セキュリティー完備

※保証会社・火災保険加入要

※写真は営業中の物になりますので、現状とは異なる場合がございます。

※万一成約済みや貸主の都合で取引条件の変更があった場合はご了承下さい。

物件概要

所在地
大阪市中央区南船場
最寄り駅・徒歩
  • 大阪メトロ御堂筋線「なんば駅」徒歩3分
賃料
250,000円(税込価格275,000円)
共益費
敷金
6ヶ月
礼金
2.2ヶ月
面積
約15.38坪
坪単価
約18,333円
階数
4階
譲渡金
-
おすすめの業態
  • サービス・その他
  • 美容関係
  • お電話にて物件IDをお伝え下さい。06-6766-2016
  • この物件のお問い合わせ
  • お電話にて物件IDをお伝え下さい。06-6766-2016
  • この物件のお問い合わせ

当社のご案内

店舗物件をお探しの方、お気軽にお立ち寄りください!

運営会社
株式会社 関西インベスト
所在地
〒542-0012
大阪府大阪市中央区谷町7-3-4新谷町第3ビル 1F
営業時間
9:30~18:00
※定休日:土曜日・日曜・祝日
電話番号
06-6766-2016
FAX番号
06-6766-2017
  • 06-6766-2016 06-6766-2016
  • 弊社へのお問い合わせ