店舗情報館 大阪の物件専門サイト

運営:「関西インベスト」  店舗物件ついてお気軽にご相談ください
  • 06-6766-2016
  • お問い合わせ・資料請求

Property Details

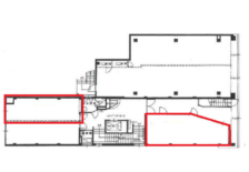
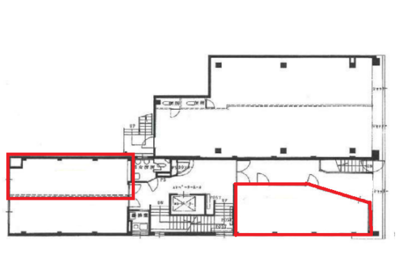
店舗と事務所のセット貸し(*^^*)堺筋に面するビルの1階★目立ちます!!

物件ID:A013694

  • 印刷
  • 路面店舗
  • 1階店舗
  • 駅近
  • 大通り沿い
  • オフィス街
  • 人気エリア

CHECK

堺筋に面する1階店舗区画(路面店)とバックヤード事務所をセットでご提供。

上質な環境と利便性を兼ね備え、

来店型ビジネスに理想的なロケーションです。

店舗運営の裏方業務もしやすく、

快適なワークスペースとしてご活用いただけます。

歩行者・車両ともに交通量が多く、高い宣伝効果「期待大」。

物販・サービス・サロン系など多様な業種におすすめです。

 

※定期借家契約3年 ※飲食不可 

※分割貸し不可 ※保証会社・火災保険加入要

※万一成約済みや貸主の都合で取引条件の変更があった場合はご了承下さい。

物件概要

所在地
大阪市中央区北久宝寺町
最寄り駅・徒歩
  • 大阪メトロ中央線「堺筋本町駅」徒歩3分
賃料
298,500円(税込価格328,350円)
共益費
42,000円(税込価格46,200円)
保証金
340万円
解約引き
198万円
面積
延約25坪(内事務所10坪)
坪単価
約13,134円
階数
1階
譲渡金
-
おすすめの業態
  • サービス・その他
  • 物販
  • 福祉・医療関係
  • 美容関係
  • お電話にて物件IDをお伝え下さい。06-6766-2016
  • この物件のお問い合わせ
  • お電話にて物件IDをお伝え下さい。06-6766-2016
  • この物件のお問い合わせ

当社のご案内

店舗物件をお探しの方、お気軽にお立ち寄りください!

運営会社
株式会社 関西インベスト
所在地
〒542-0012
大阪府大阪市中央区谷町7-3-4新谷町第3ビル 1F
営業時間
9:30~18:00
※定休日:土曜日・日曜・祝日
電話番号
06-6766-2016
FAX番号
06-6766-2017
  • 06-6766-2016 06-6766-2016
  • 弊社へのお問い合わせ