店舗情報館 大阪の物件専門サイト

運営:「関西インベスト」  店舗物件ついてお気軽にご相談ください
  • 06-6766-2016
  • お問い合わせ・資料請求

Property Details

★三休橋★雰囲気バツグンの理想のバー空間♪

物件ID:A013693

  • 印刷
  • 居抜き
  • 人気エリア
  • 繁華街

CHECK

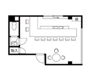
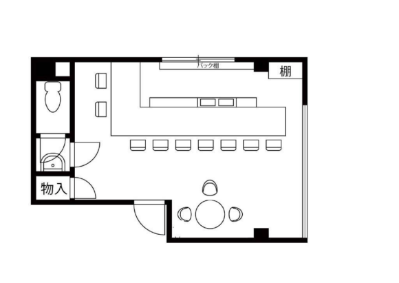
カウンター9席+テーブル席まで備えた、バーに最適レイアウト!!

シックな木目のカウンターに落ち着いた照明…

今日から営業できそう!と思える仕上がりです。

しかも、トイレ・エアコンは新設済みで設備状態も◎

初期コストを抑えてスタートしたい方にぴったりです。

立地は人気の三休橋筋沿い。

常連づくりにも最適な人流が期待できますヽ(^o^)丿

理想のバーづくりの後押しとなるスタートにぴったりな一室★

業種諸条件等お気軽にお問合せくださいませ。

 

※保証会社・火災保険加入要 ※定期借家契約10年

※飲食店、ガールズバー、ホスト系など不可 ※電気基本料:11,000円(税込)/月

※インフラ:電灯@50円 動力@30円 水道@700円

※写真は営業中の物になりますので、現状とは異なる場合がございます。
※万一成約済みや貸主の都合で取引条件の変更があった場合はご了承下さい。

物件概要

所在地
大阪市中央区東心斎橋
最寄り駅・徒歩
  • 大阪メトロ御堂筋線「心斎橋駅」徒歩5分
賃料
200,000円(税込価格220,000円)
共益費
30,000円(税込価格33,000円)
敷金
2ヶ月
礼金
3.3ヶ月
面積
約8.47坪
坪単価
約27,500円
階数
5階
譲渡金
-
おすすめの業態
  • スナック・ラウンジ
  • バー
  • お電話にて物件IDをお伝え下さい。06-6766-2016
  • この物件のお問い合わせ
  • お電話にて物件IDをお伝え下さい。06-6766-2016
  • この物件のお問い合わせ

当社のご案内

店舗物件をお探しの方、お気軽にお立ち寄りください!

運営会社
株式会社 関西インベスト
所在地
〒542-0012
大阪府大阪市中央区谷町7-3-4新谷町第3ビル 1F
営業時間
9:30~18:00
※定休日:土曜日・日曜・祝日
電話番号
06-6766-2016
FAX番号
06-6766-2017
  • 06-6766-2016 06-6766-2016
  • 弊社へのお問い合わせ