店舗情報館 大阪の物件専門サイト

運営:「関西インベスト」  店舗物件ついてお気軽にご相談ください
  • 06-6766-2016
  • お問い合わせ・資料請求

Property Details

落ち着き×集客力がちょうどいい。天満橋で、記憶に残る一軒に――(*´ω`)

この物件は商談中です

物件ID:A013736

  • 印刷
  • 居抜き
  • 大通り沿い
  • オフィス街

CHECK

官公庁・オフィス街としての顔を持ちながら、

中之島や大川沿いの落ち着いた雰囲気も楽しめる天満橋エリア。

大人のお客様にしっかり選ばれる街です。

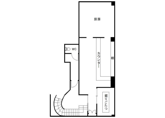
専用階段付の地下1階テナント。

知っている人が通う隠れ家感がしっかり演出できるのだ最大のポイント。

内装には高級感があり、カウンター・個室・厨房動線も整っているため、

落ち着いた飲食業態にぴったり。

無理なく回せてしっかり利益を出しやすいサイズ感を

ぜひ一度、現地でご確認ください。

業種・諸条件等お気軽にお問い合わせください。

 

※火災保険・保証会社加入要 ※EV使用不可

※写真は営業中の物になりますので、現状とは異なる場合がございます。
※万一成約済みや貸主の都合で取引条件の変更があった場合はご了承下さい。

物件概要

所在地
大阪市中央区天満橋京町
最寄り駅・徒歩
  • 大阪メトロ谷町線「天満橋駅」徒歩2分
賃料
350,000円(税込価格385,000円)
共益費
敷金
-
礼金
137.5万円
面積
約25坪
坪単価
約15,400円
階数
B1階
譲渡金
-
おすすめの業態
  • ダイニングバー
  • 軽飲食
  • 飲食店
  • お電話にて物件IDをお伝え下さい。06-6766-2016
  • この物件のお問い合わせ
  • お電話にて物件IDをお伝え下さい。06-6766-2016
  • この物件のお問い合わせ

当社のご案内

店舗物件をお探しの方、お気軽にお立ち寄りください!

運営会社
株式会社 関西インベスト
所在地
〒542-0012
大阪府大阪市中央区谷町7-3-4新谷町第3ビル 1F
営業時間
9:30~18:00
※定休日:土曜日・日曜・祝日
電話番号
06-6766-2016
FAX番号
06-6766-2017
  • 06-6766-2016 06-6766-2016
  • 弊社へのお問い合わせ