店舗情報館 大阪の物件専門サイト

運営:「関西インベスト」  店舗物件ついてお気軽にご相談ください
  • 06-6766-2016
  • お問い合わせ・資料請求

Property Details

ミナミのど真ん中で、”選ばれるお店”になる!(^^)!来秋竣工予定の新築ビル♪

物件ID:A013737

  • 印刷
  • スケルトン
  • 人気エリア
  • 繁華街
  • 新築

CHECK

心斎橋駅・長堀駅の2駅利用可、清水町筋に面した視認性の高い立地に、

2026年10月完成予定の新築テナント・2階区画が登場。

新築ビルならではの清潔感・デザイン性・安心感は大きなポイント。

内装はこれからつくる自由設計だから、

✔ サロン

✔ 物販・ショールーム

✔ クリニック・サービス店舗

✔ オフィス兼店舗

など、業態の世界観をそのまま形にできるのが魅力です。

「お店の第一印象を大切にしたい」方には、これ以上ない条件。

完成前から注目度の高い物件!!

業種・諸条件等お気軽にお問い合わせください。

 

※火災保険・保証会社加入要 ※重飲食・水商売不可

※写真はイメージパースになりますので、実際とは異なる場合がございます。
※万一成約済みや貸主の都合で取引条件の変更があった場合はご了承下さい。

物件概要

所在地
大阪市中央区東心斎橋
最寄り駅・徒歩
  • 大阪メトロ御堂筋線「心斎橋駅」徒歩3分
  • 大阪メトロ堺筋線「長堀橋駅」徒歩5分
賃料
500,000円(税込価格550,000円)
共益費
敷金
6ヶ月
礼金
2.2ヶ月
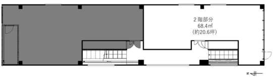
面積
約20.6坪
坪単価
約27,500円
階数
2階
譲渡金
-
おすすめの業態
  • サービス・その他
  • テイクアウト
  • 物販
  • 美容関係
  • 軽飲食
  • 飲食店
  • お電話にて物件IDをお伝え下さい。06-6766-2016
  • この物件のお問い合わせ
  • お電話にて物件IDをお伝え下さい。06-6766-2016
  • この物件のお問い合わせ

当社のご案内

店舗物件をお探しの方、お気軽にお立ち寄りください!

運営会社
株式会社 関西インベスト
所在地
〒542-0012
大阪府大阪市中央区谷町7-3-4新谷町第3ビル 1F
営業時間
9:30~18:00
※定休日:土曜日・日曜・祝日
電話番号
06-6766-2016
FAX番号
06-6766-2017
  • 06-6766-2016 06-6766-2016
  • 弊社へのお問い合わせ