店舗情報館 大阪の物件専門サイト

運営:「関西インベスト」  店舗物件ついてお気軽にご相談ください
  • 06-6766-2016
  • お問い合わせ・資料請求

Property Details

そのまま始められる、ワンランク上の美容クリニック・サロン(*^^*)

物件ID:A013742

  • 印刷
  • 居抜き
  • オフィス街
  • ワンフロア

CHECK

御堂筋線、オフィス街の主要駅「本町・淀屋橋」エリア☆

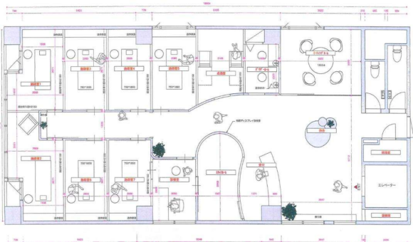
美装美容クリニックの居抜き物件が登場!!

すでに受付・待合・施術室・カウンセリングスペースまで整った内装は、

開業準備に時間をかけられない、という方にこそ選んでほしい一室。

室内は、

✔ 清潔感のある高級感デザイン

✔ プライバシーに配慮した個室レイアウト

✔ クリニック動線を意識した間取り

と、すでに選ばれる空間が完成しています。

美容系のクリニックはもちろん、エステ、美容サロン、鍼灸・整体等

幅広い業態にフィットしますよ♪

業種・諸条件等お気軽にお問い合わせください。

 

※火災保険・保証会社加入要 ※深夜オートロック施錠

※写真は営業中の物になりますので、現状とは異なる場合がございます。
※万一成約済みや貸主の都合で取引条件の変更があった場合はご了承下さい。

物件概要

所在地
大阪市中央区淡路町
最寄り駅・徒歩
  • 大阪メトロ御堂筋線「本町駅」徒歩3分
  • 大阪メトロ御堂筋線「淀屋橋駅」徒歩3分
賃料
650,000円(税込価格715,000円)
共益費
保証金
3ヶ月
礼金
2.2ヶ月
面積
約51.39坪
坪単価
約14,020円
階数
4階
譲渡金
-
おすすめの業態
  • 福祉・医療関係
  • 美容関係
  • お電話にて物件IDをお伝え下さい。06-6766-2016
  • この物件のお問い合わせ
  • お電話にて物件IDをお伝え下さい。06-6766-2016
  • この物件のお問い合わせ

当社のご案内

店舗物件をお探しの方、お気軽にお立ち寄りください!

運営会社
株式会社 関西インベスト
所在地
〒542-0012
大阪府大阪市中央区谷町7-3-4新谷町第3ビル 1F
営業時間
9:30~18:00
※定休日:土曜日・日曜・祝日
電話番号
06-6766-2016
FAX番号
06-6766-2017
  • 06-6766-2016 06-6766-2016
  • 弊社へのお問い合わせ