店舗情報館 大阪の物件専門サイト

運営:「関西インベスト」  店舗物件ついてお気軽にご相談ください
  • 06-6766-2016
  • お問い合わせ・資料請求

Property Details

駅前×内環沿い!!3フロアーまるっと居抜き(^^)/

物件ID:A013752

  • 印刷
  • 1階店舗
  • 駅前
  • 居抜き
  • 重飲食相談
  • 大通り沿い
  • 一棟貸

CHECK

毎日の通勤・通学・近隣住民の動線上に位置する駅前立地で、集客力は申し分なし!!

視認性の高いロケーションで

「ここに新しいお店ができた!」とすぐに気づいてもらえるのが大きな魅力♪

厨房設備・内装が整った居抜きで、工事の時間を短縮できます。

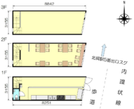
テイクアウトは1階、客席は2階、スタッフルームは3階などなど…

1-3階の3フロアー構成で使い方は自由自在。

地域密着型でしっかり商売するなら、

リピーター獲得が期待できる「北巽」の駅前はもってこいです(*^^*)

業種・諸条件等お気軽にお問い合わせください。

 

※火災保険・保証会社加入要

※写真は営業中の物になりますので、現状とは異なる場合がございます。
※万一成約済みや貸主の都合で取引条件の変更があった場合はご了承下さい。

物件概要

所在地
大阪市生野区巽中
最寄り駅・徒歩
  • 大阪メトロ千日前線「北巽駅」徒歩1分
賃料
230,000円(税込価格253,000円)
共益費
敷金
75.9万円
礼金
75.9万円
面積
延約24.48坪
坪単価
約10,542円
階数
1-3階
譲渡金
希望有
おすすめの業態
  • ダイニングバー
  • テイクアウト
  • 軽飲食
  • 重飲食
  • 飲食店
  • お電話にて物件IDをお伝え下さい。06-6766-2016
  • この物件のお問い合わせ
  • お電話にて物件IDをお伝え下さい。06-6766-2016
  • この物件のお問い合わせ

当社のご案内

店舗物件をお探しの方、お気軽にお立ち寄りください!

運営会社
株式会社 関西インベスト
所在地
〒542-0012
大阪府大阪市中央区谷町7-3-4新谷町第3ビル 1F
営業時間
9:30~18:00
※定休日:土曜日・日曜・祝日
電話番号
06-6766-2016
FAX番号
06-6766-2017
  • 06-6766-2016 06-6766-2016
  • 弊社へのお問い合わせ