店舗情報館 大阪の物件専門サイト

運営:「関西インベスト」  店舗物件ついてお気軽にご相談ください
  • 06-6766-2016
  • お問い合わせ・資料請求

Property Details

ついに完成(^o^)/駅徒歩1分の新築マンション1階で、集客とイメージを一気に格上げ☆

物件ID:A013778

  • 印刷
  • スケルトン
  • 路面店舗
  • 1階店舗
  • 駅近
  • 新築

CHECK

日本橋駅から、なんと徒歩1分!!

スタイリッシュな新築マンションが誕生しました。

その1階路面部分という、一番目に入りやすい特等席で開業しませんか?

新築ならではのキレイさ・安心感はもちろん、

外観のスマートさがそのままお店のブランド力にも直結。

観光客・働く人・住んでいる人が入り混じる日本橋らしい賑わいエリア。

テイクアウト店・物販・美容系・サービス店舗など、

コンパクトでも機能性の高いお店づくりにピッタリです。

🌈駅近 × 新築 × 1階路面🌈

この三拍子がそろう物件は本当にレア!

業種・諸条件等お気軽にお問い合わせください。

 

※保証会社・火災保険加入要 ※重飲食不可

※万一成約済みや貸主の都合で取引条件の変更があった場合はご了承下さい。

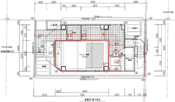
物件概要

所在地
大阪市中央区日本橋
最寄り駅・徒歩
  • 近鉄難波線「日本橋駅」徒歩1分
賃料
550,000円(税込価格605,000円)
共益費
保証金
3ヶ月
礼金
2.2ヶ月
面積
約9.54坪
坪単価
約67,222円
階数
1階
譲渡金
-
おすすめの業態
  • サービス・その他
  • ダイニングバー
  • テイクアウト
  • 物販
  • 福祉・医療関係
  • 美容関係
  • 軽飲食
  • 飲食店
  • お電話にて物件IDをお伝え下さい。06-6766-2016
  • この物件のお問い合わせ
  • お電話にて物件IDをお伝え下さい。06-6766-2016
  • この物件のお問い合わせ

当社のご案内

店舗物件をお探しの方、お気軽にお立ち寄りください!

運営会社
株式会社 関西インベスト
所在地
〒542-0012
大阪府大阪市中央区谷町7-3-4新谷町第3ビル 1F
営業時間
9:30~18:00
※定休日:土曜日・日曜・祝日
電話番号
06-6766-2016
FAX番号
06-6766-2017
  • 06-6766-2016 06-6766-2016
  • 弊社へのお問い合わせ