店舗情報館 大阪の物件専門サイト

運営:「関西インベスト」  店舗物件ついてお気軽にご相談ください
  • 06-6766-2016
  • お問い合わせ・資料請求

Property Details

そのまま始められる◎オフィス街×駅直結!!居酒屋居抜き物件(*^^*)

物件ID:A013794

  • 印刷
  • 駅近
  • 居抜き
  • オフィス街

CHECK

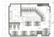
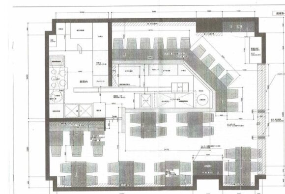
本町エリアの駅直結商業ビル内飲食フロアー!!

すぐにでも始められる居酒屋居抜き物件でございます。

雨の日でも濡れずに来店できるので

仕事帰りの一杯需要をがっちりキャッチできます。

厨房機器一式あり、カウンター・客席レイアウトも完成済み◎

「できるだけ早くオープンしたい」方にはこれ以上ない条件です。

飲食店にとって理想的な商圏で自然と集客できる環境は整っております。

業種諸条件等お気軽にお問合せくださいませ。

 

※保証会社・火災保険加入要 ※厨房機器リース引継ぎ希望

※写真は営業中の物になりますので、現状とは異なる場合がございます。
※万一成約済みや貸主の都合で取引条件の変更があった場合はご了承下さい。

物件概要

所在地
大阪市中央区船場中央
最寄り駅・徒歩
  • 大阪メトロ御堂筋線「本町駅」徒歩3分
賃料
220,000円(税込価格242,000円)
管理費
119,188円(税込価格131,107円)
保証金
150万円
解約引き
50%
面積
約17.65坪
坪単価
約14,235円
階数
B2階
譲渡金
希望有
おすすめの業態
  • ダイニングバー
  • 軽飲食
  • 飲食店
  • お電話にて物件IDをお伝え下さい。06-6766-2016
  • この物件のお問い合わせ
  • お電話にて物件IDをお伝え下さい。06-6766-2016
  • この物件のお問い合わせ

当社のご案内

店舗物件をお探しの方、お気軽にお立ち寄りください!

運営会社
株式会社 関西インベスト
所在地
〒542-0012
大阪府大阪市中央区谷町7-3-4新谷町第3ビル 1F
営業時間
9:30~18:00
※定休日:土曜日・日曜・祝日
電話番号
06-6766-2016
FAX番号
06-6766-2017
  • 06-6766-2016 06-6766-2016
  • 弊社へのお問い合わせ