店舗情報館 大阪の物件専門サイト

運営:「関西インベスト」  店舗物件ついてお気軽にご相談ください
  • 06-6766-2016
  • お問い合わせ・資料請求

Property Details

京橋駅、目の前。2026年夏、視認性抜群のビルが完成します(^o^)/

物件ID:A013812

  • 印刷
  • 駅近
  • 重飲食可
  • 大通り沿い
  • 新築

CHECK

大阪屈指のターミナル駅の”駅前一等地”に、

デザイン性にとことんこだわった新築商業ビルが誕生します!

圧倒的な人流を誇るエリアで、

自然と認知が広がり、集客のスタートダッシュも段違いです。

通りからの視認性も高く、

看板・ファサードの見せ方次第で「あのお店、気になる!」を生み出せます。

「人通りの多さ」「駅近」「新築」「デザイン性」

出店においてほしい条件が、ここにそろっております。

業種諸条件等お気軽にお問い合わせください。

 

※火災保険・保証会社加入要 ※2026年9月入居者限定フリーレント2ヶ月

※定期借家契約10年 

※写真はイメージパースになりますので、実際とは異なる場合がございます。

※万一成約済みや貸主の都合で取引条件の変更があった場合はご了承下さい。

物件概要

所在地
大阪市都島区東野田町
最寄り駅・徒歩
  • 各線「京橋駅」徒歩2分
賃料
480,000円(税込価格528,000円)
共益費
28,905円(税込価格31,796円)
保証金
6ヶ月
礼金
4.4ヶ月
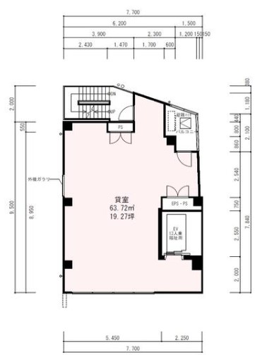
面積
約19.27坪
坪単価
約27,789円
階数
2階
譲渡金
-
おすすめの業態
  • サービス・その他
  • スナック・ラウンジ
  • ダイニングバー
  • バー
  • 学習塾
  • 物販
  • 福祉・医療関係
  • 美容関係
  • 軽飲食
  • 重飲食
  • 飲食店
  • お電話にて物件IDをお伝え下さい。06-6766-2016
  • この物件のお問い合わせ
  • お電話にて物件IDをお伝え下さい。06-6766-2016
  • この物件のお問い合わせ

当社のご案内

店舗物件をお探しの方、お気軽にお立ち寄りください!

運営会社
株式会社 関西インベスト
所在地
〒542-0012
大阪府大阪市中央区谷町7-3-4新谷町第3ビル 1F
営業時間
9:30~18:00
※定休日:土曜日・日曜・祝日
電話番号
06-6766-2016
FAX番号
06-6766-2017
  • 06-6766-2016 06-6766-2016
  • 弊社へのお問い合わせ