店舗情報館 大阪の物件専門サイト

運営:「関西インベスト」  店舗物件ついてお気軽にご相談ください
  • 06-6766-2016
  • お問い合わせ・資料請求

Property Details

グルメの街でまるごと使える居抜き戸建♪スケルトンもご相談ください(*ノωノ)

物件ID:A013822

  • 印刷
  • スケルトン
  • 路面店舗
  • 1階店舗
  • 居抜き
  • 2WAYアクセス
  • 一棟貸

CHECK

福島の主要駅から徒歩3分。

駅近なのに、がやがやしすぎない、

「知っている人が通う店」「予約したくなる店」

そんな大人の福島を体現できるロケーション!!

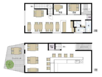
最大の魅力はフロアごとに役割を分けられる3層構造。

業態の幅が一気に広がり、

客単価アップ・回転率・満足度すべてを狙えます。

飲食店の居抜きでお引渡し!!

ですが、スケルトンご希望の方、ご相談賜ります(^^)/

長く愛され、口コミで育つ街福島でやるなら一押しの物件です。

業種諸条件等お気軽にお問い合わせください。

 

※火災保険・保証会社加入要 

※写真は営業中の物になりますので、現状とは異なる場合がございます。

※万一成約済みや貸主の都合で取引条件の変更があった場合はご了承下さい。

物件概要

所在地
大阪市福島区福島
最寄り駅・徒歩
  • JR東西線「新福島駅」徒歩3分
  • 阪神本線「福島駅」徒歩3分
賃料
580,000円(税込価格638,000円)
共益費
敷金
2ヶ月
礼金
3.3ヶ月
面積
延約42.35坪
坪単価
約15,190円
階数
1-3階
譲渡金
希望有
おすすめの業態
  • サービス・その他
  • ダイニングバー
  • 物販
  • 美容関係
  • 軽飲食
  • 飲食店
  • お電話にて物件IDをお伝え下さい。06-6766-2016
  • この物件のお問い合わせ
  • お電話にて物件IDをお伝え下さい。06-6766-2016
  • この物件のお問い合わせ

当社のご案内

店舗物件をお探しの方、お気軽にお立ち寄りください!

運営会社
株式会社 関西インベスト
所在地
〒542-0012
大阪府大阪市中央区谷町7-3-4新谷町第3ビル 1F
営業時間
9:30~18:00
※定休日:土曜日・日曜・祝日
電話番号
06-6766-2016
FAX番号
06-6766-2017
  • 06-6766-2016 06-6766-2016
  • 弊社へのお問い合わせ