店舗情報館 大阪の物件専門サイト

運営:「関西インベスト」  店舗物件ついてお気軽にご相談ください
  • 06-6766-2016
  • お問い合わせ・資料請求

Property Details

クラブ・ラウンジ限定募集!1階メイン店舗から募集開始しました!!

この物件は商談中です

物件ID:A013825

  • 印刷
  • 1階店舗
  • 居抜き
  • 2WAYアクセス
  • 人気エリア
  • 繁華街

CHECK

西日本屈指の高級歓楽街「北新地」。

高級クラブや会員制ラウンジ・割烹・鮨・和食の名店が集積するエリア。

中でも希少な1階路面区画はめったに出ません!!

クラブ・ラウンジ限定で募集開始です。

高級感ある店内で、落ち着いた客層を想定した営業が可能(^^♪

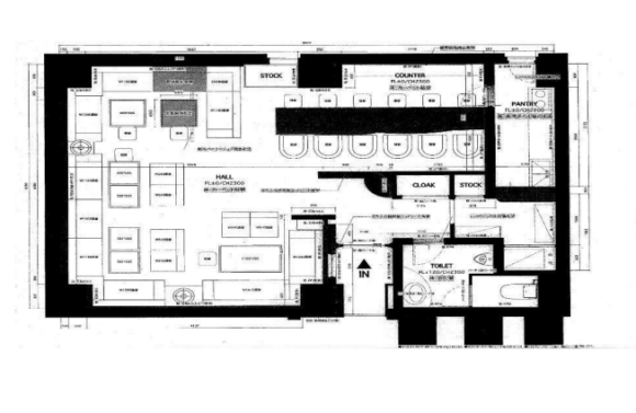
約26坪の使いやすい広さで、北新地らしい上質な店舗づくりに適したテナントです。

「大人の街」北新地で開業しませんか。

 

※催事費用初回3.3万円(税込)、以降1.1万円(税込)/年 ※害虫駆除費:4,400円(税込)/月

※保証会社・火災保険加入要 ※火災保険・設備工事・塵芥処理費 指定業者有

※写真は営業中の物になりますので、現状とは異なる場合がございます。
※万一成約済みや貸主の都合で取引条件の変更があった場合はご了承下さい。

物件概要

所在地
大阪市北区曽根崎新地
最寄り駅・徒歩
  • JR東西線「北新地駅」徒歩5分
  • 大阪メトロ四つ橋線「西梅田駅」徒歩7分
賃料
792,000円(税込価格871,200円)
共益費
保証金
7,920,000円
解約引き
6,969,600円
面積
約26.4坪
坪単価
約33,508円
階数
1階
譲渡金
-
おすすめの業態
  • スナック・ラウンジ
  • お電話にて物件IDをお伝え下さい。06-6766-2016
  • この物件のお問い合わせ
  • お電話にて物件IDをお伝え下さい。06-6766-2016
  • この物件のお問い合わせ

当社のご案内

店舗物件をお探しの方、お気軽にお立ち寄りください!

運営会社
株式会社 関西インベスト
所在地
〒542-0012
大阪府大阪市中央区谷町7-3-4新谷町第3ビル 1F
営業時間
9:30~18:00
※定休日:土曜日・日曜・祝日
電話番号
06-6766-2016
FAX番号
06-6766-2017
  • 06-6766-2016 06-6766-2016
  • 弊社へのお問い合わせ