店舗情報館 大阪の物件専門サイト

運営:「関西インベスト」  店舗物件ついてお気軽にご相談ください
  • 06-6766-2016
  • お問い合わせ・資料請求

Property Details

専用階段付2階ワンフロアー★御堂筋と堺筋の真ん中(*‘∀‘)

物件ID:A013857

  • 印刷
  • スケルトン
  • 2WAYアクセス
  • 重飲食相談

CHECK

御堂筋と堺筋の中間!

オフィス・タワマン等住居、ホテルの混合立地。

テナントビル2階ワンフロア。

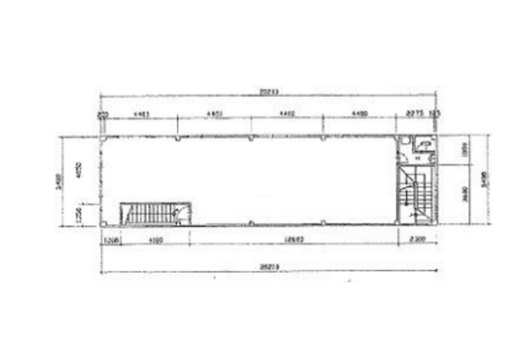
約30坪の広さがあり、専用階段付きで独立性の高い店舗です。

重飲食相談可能で、レストラン・居酒屋など幅広い業態に対応。

1階には人気の上海料理店が入居しており、集客力も期待できる物件です。

スケルトンだからこそできる「理想の店舗」(*^^*)

飲食店に限らず、美容系・医療系・物販店・サービス店、

あらゆるジャンルで是非ご検討ください!!

 

※家主承諾の転貸借契約 ※短期解約違約金有:6ヶ月未満-賃料2ヶ月 1年未満-賃料1ヶ月

※保証会社・火災保険加入要

※万一成約済みや貸主の都合で取引条件の変更があった場合はご了承下さい。

物件概要

所在地
大阪市中央区南船場
最寄り駅・徒歩
  • 大阪メトロ各線「長堀橋駅」徒歩5分
  • 大阪メトロ各線「心斎橋駅」徒歩7分
賃料
420,000円(税込価格462,000円)
共益費
10,000円(税込価格11,000円)
敷金
-
礼金
3.3ヶ月
面積
約30.49坪
坪単価
約15,400円
階数
2階
譲渡金
-
おすすめの業態
  • サービス・その他
  • ダイニングバー
  • 倉庫
  • 学習塾
  • 物販
  • 福祉・医療関係
  • 美容関係
  • 軽飲食
  • 重飲食
  • 飲食店
  • お電話にて物件IDをお伝え下さい。06-6766-2016
  • この物件のお問い合わせ
  • お電話にて物件IDをお伝え下さい。06-6766-2016
  • この物件のお問い合わせ

当社のご案内

店舗物件をお探しの方、お気軽にお立ち寄りください!

運営会社
株式会社 関西インベスト
所在地
〒542-0012
大阪府大阪市中央区谷町7-3-4新谷町第3ビル 1F
営業時間
9:30~18:00
※定休日:土曜日・日曜・祝日
電話番号
06-6766-2016
FAX番号
06-6766-2017
  • 06-6766-2016 06-6766-2016
  • 弊社へのお問い合わせ