店舗情報館 大阪の物件専門サイト

運営:「関西インベスト」  店舗物件ついてお気軽にご相談ください
  • 06-6766-2016
  • お問い合わせ・資料請求

Property Details

中津エリア×路面店(^^)/これは正直、ねらい目です!!

物件ID:A013887

  • 印刷
  • スケルトン
  • 路面店舗
  • 1階店舗
  • 駅近
  • 大通り沿い

CHECK

・梅田の喧騒から少し離れた落ち着いた雰囲気

・感度の高いカフェや飲食店が増えている注目エリア

というちょうどいい街中津エリア。

視認性抜群の路面物件をご紹介いたします。

間口がしっかり広く、

看板・ファサード・ショーウインドウなどの

見せ方の自由度が高いところがポイント★

立ち寄りやすい立地条件でテイクアウトや飲食、物販店がハマります!!

これからさらに注目が集まる街でお店を育てるチャンスです(*^^)v

業種・諸条件等お気軽にお問合せ下さいませ。

 

※保証会社・火災保険加入要 ※専有部清掃費:15,730円/半年

※定期借家契約 ※重飲食不可

※万一成約済みや貸主の都合で取引条件の変更があった場合はご了承下さい。

物件概要

所在地
大阪市北区中津
最寄り駅・徒歩
  • 大阪メトロ御堂筋線「中津駅」徒歩2分
賃料
286,000円(税込価格314,600円)
共益費
敷金
12ヶ月
解約引き
-
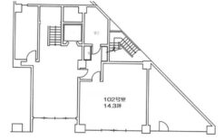
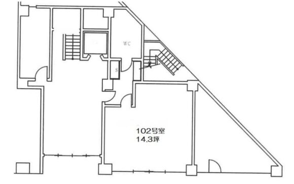
面積
約14.29坪
坪単価
約22,471円
階数
1階
譲渡金
-
おすすめの業態
  • サービス・その他
  • テイクアウト
  • 学習塾
  • 物販
  • 美容関係
  • 軽飲食
  • 飲食店
  • お電話にて物件IDをお伝え下さい。06-6766-2016
  • この物件のお問い合わせ
  • お電話にて物件IDをお伝え下さい。06-6766-2016
  • この物件のお問い合わせ

当社のご案内

店舗物件をお探しの方、お気軽にお立ち寄りください!

運営会社
株式会社 関西インベスト
所在地
〒542-0012
大阪府大阪市中央区谷町7-3-4新谷町第3ビル 1F
営業時間
9:30~18:00
※定休日:土曜日・日曜・祝日
電話番号
06-6766-2016
FAX番号
06-6766-2017
  • 06-6766-2016 06-6766-2016
  • 弊社へのお問い合わせ