店舗情報館 大阪の物件専門サイト

運営:「関西インベスト」  店舗物件ついてお気軽にご相談ください
  • 06-6766-2016
  • お問い合わせ・資料請求

Property Details

落ち着いた隠れ家感を演出できる(・∀・)専用階段付のプライベート空間♪

物件ID:A013893

  • 印刷
  • 居抜き
  • 大通り沿い
  • 人気エリア

CHECK

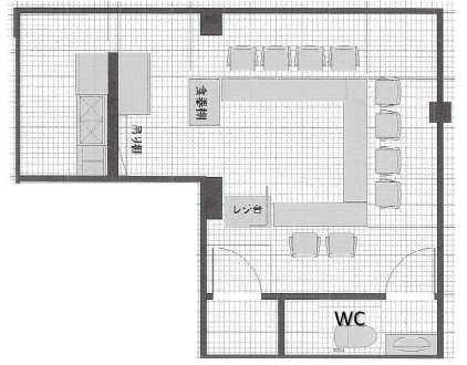
「特別感」と「居心地の良さ」を演出できるとっておきの地下店舗。

バーや飲食手、カフェ、サロンなど、

雰囲気づくりを大切にしたい業態に相性抜群の物件です。

さらに、専用階段が設けられているのが大きなポイント。

来店される方に目的来店の特別感を演出できます。

中津や梅田へのアクセスが良く、人気のエリア。

カウンターを活かしたお店づくりや、

アットホームな空間づくりなど、

コンセプトの幅が広がりますよ(^^)/

業種・諸条件等お気軽にお問合せ下さいませ。

 

※保証会社・火災保険加入要 ※定期借家契約7年

※万一成約済みや貸主の都合で取引条件の変更があった場合はご了承下さい。

※写真は営業中の物になりますので、現状とは異なる場合がございます。

物件概要

所在地
大阪市北区豊崎
最寄り駅・徒歩
  • 大阪メトロ御堂筋線「中津駅」徒歩3分
賃料
300,000円(税込価格330,000円)
共益費
敷金
1ヶ月
礼金
2.2ヶ月
面積
約15.77坪
坪単価
約22,000円
階数
B1階
譲渡金
希望有
おすすめの業態
  • サービス・その他
  • ダイニングバー
  • バー
  • 美容関係
  • 軽飲食
  • 飲食店
  • お電話にて物件IDをお伝え下さい。06-6766-2016
  • この物件のお問い合わせ
  • お電話にて物件IDをお伝え下さい。06-6766-2016
  • この物件のお問い合わせ

当社のご案内

店舗物件をお探しの方、お気軽にお立ち寄りください!

運営会社
株式会社 関西インベスト
所在地
〒542-0012
大阪府大阪市中央区谷町7-3-4新谷町第3ビル 1F
営業時間
9:30~18:00
※定休日:土曜日・日曜・祝日
電話番号
06-6766-2016
FAX番号
06-6766-2017
  • 06-6766-2016 06-6766-2016
  • 弊社へのお問い合わせ