店舗情報館 大阪の物件専門サイト

運営:「関西インベスト」  店舗物件ついてお気軽にご相談ください
  • 06-6766-2016
  • お問い合わせ・資料請求

Property Details

即営業OKのラウンジ居抜き物件!!ミナミど真ん中です(^^)/

物件ID:A013924

  • 印刷
  • 居抜き
  • 人気エリア
  • 繁華街

CHECK

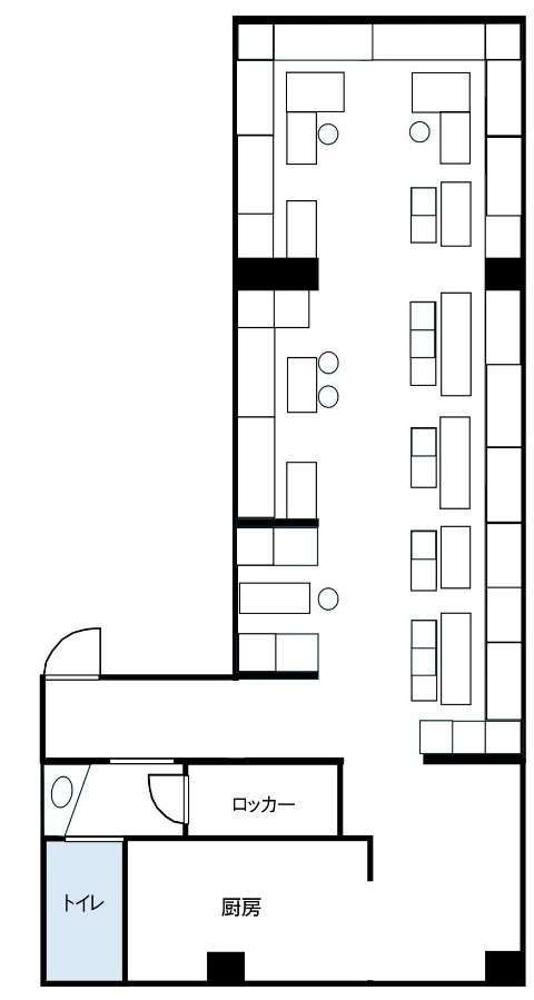
◆“そのまま始められる”完成度の高さ

店内はすでにラウンジ仕様で、ボックス席・カウンター・照明・内装の雰囲気までしっかり整っています。

◆約21坪のゆとりある空間

広すぎず、狭すぎない絶妙なサイズ感。

テーブル席をしっかり確保できるので、団体利用や売上単価アップも狙いやすいレイアウトです。

ボックス中心の造りは、お客様が長く滞在しやすく、ラウンジ業態との相性も抜群◎

◆東心斎橋という“ブランド立地”

言わずと知れたナイトシーンの激戦区。

「東心斎橋でやっている」というだけで、一定の集客ポテンシャルを持てるのは大きなアドバンテージ。

ミナミで勝負したい方、今がチャンスです。

業種諸条件等お気軽にお問合せくださいませ。

 

※保証会社・火災保険加入要 ※サブリース物件

※看板料:2,200円(税込)/月 ※カラオケ指定業者あり

※写真は営業中の物になりますので、現状とは異なる場合がございます。
※万一成約済みや貸主の都合で取引条件の変更があった場合はご了承下さい。

物件概要

所在地
大阪市中央区東心斎橋
最寄り駅・徒歩
  • 大阪メトロ堺筋線「日本橋駅」徒歩5分
賃料
431,000円(税込価格474,100円)
共益費
44,000円(税込価格48,400円)
敷金
30万円
礼金
253万円
面積
約21.55坪
坪単価
約22,576円
階数
3階
譲渡金
-
おすすめの業態
  • スナック・ラウンジ
  • バー
  • お電話にて物件IDをお伝え下さい。06-6766-2016
  • この物件のお問い合わせ
  • お電話にて物件IDをお伝え下さい。06-6766-2016
  • この物件のお問い合わせ

当社のご案内

店舗物件をお探しの方、お気軽にお立ち寄りください!

運営会社
株式会社 関西インベスト
所在地
〒542-0012
大阪府大阪市中央区谷町7-3-4新谷町第3ビル 1F
営業時間
9:30~18:00
※定休日:土曜日・日曜・祝日
電話番号
06-6766-2016
FAX番号
06-6766-2017
  • 06-6766-2016 06-6766-2016
  • 弊社へのお問い合わせ