店舗情報館 大阪の物件専門サイト

運営:「関西インベスト」  店舗物件ついてお気軽にご相談ください
  • 06-6766-2016
  • お問い合わせ・資料請求

Property Details

ナイトビジネスの本命エリア!!BAR居抜き物件で勝負です(‘◇’)ゞ

物件ID:A013927

  • 印刷
  • 居抜き
  • 人気エリア
  • 繁華街

CHECK

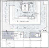
大阪ミナミの中心地・東心斎橋のBAR居抜き物件。

まず最大のポイントは――

✨【即営業可能な完成された内装】✨

✔ 初期投資を大幅に抑えられる

✔ オープンまでの期間を短縮できる

✔ 資金を仕入れや広告に回せる

という、開業時に一番うれしいメリットが揃っています。

夜の回遊性が高い=集客チャンスが多い立地。

ワンオペや少人数営業にちょうどいい空間。

深夜帯までしっかり売り上げを取りに行ける、注目の物件です★

業種諸条件等お気軽にお問合せくださいませ。

 

※保証会社・火災保険加入要 ※基本電気料:8,800円(税込)

※基本水道料:4,400円(税込) ※更新料:28.6万円

※重飲食不可 ※鍵交換費用:33,000円(税込)(任意)

※写真は営業中の物になりますので、現状とは異なる場合がございます。
※万一成約済みや貸主の都合で取引条件の変更があった場合はご了承下さい。

物件概要

所在地
大阪市中央区東心斎橋
最寄り駅・徒歩
  • 大阪メトロ御堂筋線「心斎橋駅」徒歩7分
賃料
200,000円(税込価格220,000円)
共益費
20,000円(税込価格22,000円)
保証金
30万円
礼金
220万円
面積
約9.09坪
坪単価
約24,444円
階数
4階
譲渡金
おすすめの業態
  • スナック・ラウンジ
  • ダイニングバー
  • バー
  • 軽飲食
  • 飲食店
  • お電話にて物件IDをお伝え下さい。06-6766-2016
  • この物件のお問い合わせ
  • お電話にて物件IDをお伝え下さい。06-6766-2016
  • この物件のお問い合わせ

当社のご案内

店舗物件をお探しの方、お気軽にお立ち寄りください!

運営会社
株式会社 関西インベスト
所在地
〒542-0012
大阪府大阪市中央区谷町7-3-4新谷町第3ビル 1F
営業時間
9:30~18:00
※定休日:土曜日・日曜・祝日
電話番号
06-6766-2016
FAX番号
06-6766-2017
  • 06-6766-2016 06-6766-2016
  • 弊社へのお問い合わせ