店舗情報館 大阪の物件専門サイト

運営:「関西インベスト」  店舗物件ついてお気軽にご相談ください
  • 06-6766-2016
  • お問い合わせ・資料請求

Property Details

すべてばっちり揃ってます★住む人・働く人が集まる場所で出店チャンス(‘◇’)ゞ

物件ID:A013960

  • 印刷
  • 1階店舗
  • 駅近
  • 居抜き
  • 重飲食相談

CHECK

扇町駅から徒歩圏内、

マンション内の大型テナントが登場しました◎

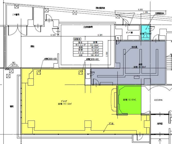
約53坪とゆとりのある広さ。

テーブルやいす、厨房設備がばっちり揃っております。

団体利用や貸切イベントなどにも対応しやすく、

売上の柱を複数作れる店舗運営が可能です。

アクセス・広さ・内装設備の三拍子そろった注目物件。

業種・諸条件等お気軽にお問合せ下さいませ。

 

※保証会社・火災保険加入要 ※定期借家契約10年

※ゴミ処理業者別途契約必須(貸主指定業者)

※駐車場空8台(別途条件有)

※万一成約済みや貸主の都合で取引条件の変更があった場合はご了承下さい。

※写真は営業中の物になりますので、現状とは異なる場合がございます。

物件概要

所在地
大阪市北区末広町
最寄り駅・徒歩
  • 大阪メトロ堺筋線「扇町駅」徒歩3分
  • JR大阪環状線「天満駅」徒歩7分
  • 大阪メトロ谷町線「南森町駅」徒歩8分
賃料
593,120円(税込価格652,432円)
共益費
161,760円(税込価格177,936円)
敷金
相談
解約引き
-
面積
約53.92坪
坪単価
約12,310円
階数
1階
譲渡金
-
おすすめの業態
  • ダイニングバー
  • 軽飲食
  • 重飲食
  • 飲食店
  • お電話にて物件IDをお伝え下さい。06-6766-2016
  • この物件のお問い合わせ
  • お電話にて物件IDをお伝え下さい。06-6766-2016
  • この物件のお問い合わせ

当社のご案内

店舗物件をお探しの方、お気軽にお立ち寄りください!

運営会社
株式会社 関西インベスト
所在地
〒542-0012
大阪府大阪市中央区谷町7-3-4新谷町第3ビル 1F
営業時間
9:30~18:00
※定休日:土曜日・日曜・祝日
電話番号
06-6766-2016
FAX番号
06-6766-2017
  • 06-6766-2016 06-6766-2016
  • 弊社へのお問い合わせ