店舗情報館 大阪の物件専門サイト

運営:「関西インベスト」  店舗物件ついてお気軽にご相談ください
  • 06-6766-2016
  • お問い合わせ・資料請求

Property Details

心斎橋・本町エリアで勝負するならココ!!商店街スグの大型路面テナント★★

物件ID:A013965

  • 印刷
  • スケルトン
  • 路面店舗
  • 1階店舗
  • 2WAYアクセス
  • 人気エリア
  • 繁華街

CHECK

大阪ミナミ~本町エリアでオオバコをお探しの方、

見逃せない物件が登場しました!!

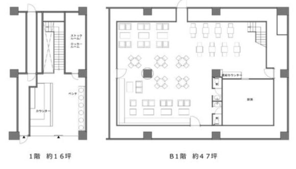
路面1階部分約16坪と、地下は広々約47坪の贅沢空間♪

現在駐車場区画を改装計画中。

地下への階段はオーナー様が施工予定。

始めやすいスケルトンにてお引渡しとなります(*^_^*)

賃料等条件についても今ならあれもこれもご相談可能でございます!!

業種・諸条件等お気軽にお問合せ下さいませ。

 

※保証会社・火災保険加入要 ※コンビニ・重飲食・バッティング不可

※袖看板不可 ※検査済証なし

※賃料・共益費・敷金・解約引き:相談

※万一成約済みや貸主の都合で取引条件の変更があった場合はご了承下さい。

※写真は現況駐車場とイメージになりますので、実際とは異なります。

物件概要

所在地
大阪市中央区南久宝寺町
最寄り駅・徒歩
  • 大阪メトロ各線「本町駅」徒歩5分
  • 大阪メトロ各線「心斎橋駅」徒歩6分
賃料
1,260,000円(税込価格1,386,000円)
共益費
敷金
相談
解約引き
相談
面積
延約63坪
坪単価
約22,000円
階数
B1+1階
譲渡金
-
おすすめの業態
  • サービス・その他
  • ダイニングバー
  • テイクアウト
  • 物販
  • 美容関係
  • 軽飲食
  • お電話にて物件IDをお伝え下さい。06-6766-2016
  • この物件のお問い合わせ
  • お電話にて物件IDをお伝え下さい。06-6766-2016
  • この物件のお問い合わせ

当社のご案内

店舗物件をお探しの方、お気軽にお立ち寄りください!

運営会社
株式会社 関西インベスト
所在地
〒542-0012
大阪府大阪市中央区谷町7-3-4新谷町第3ビル 1F
営業時間
9:30~18:00
※定休日:土曜日・日曜・祝日
電話番号
06-6766-2016
FAX番号
06-6766-2017
  • 06-6766-2016 06-6766-2016
  • 弊社へのお問い合わせ