店舗情報館 大阪の物件専門サイト

運営:「関西インベスト」  店舗物件ついてお気軽にご相談ください
  • 06-6766-2016
  • お問い合わせ・資料請求

Property Details

谷町筋×新築×駅近=勝てる条件揃ってます( *´艸`)

物件ID:A013974

  • 印刷
  • スケルトン
  • 路面店舗
  • 1階店舗
  • 駅近
  • 大通り沿い
  • 新築

CHECK

視認性抜群の谷町筋沿いに、2025年にできたばかりの新築マンション。

その顔となる1階部分で出店チャンスです!!

駅徒歩1分という圧倒的な立地力…

これは集客面でかなりのアドバンテージです。

まず最大の魅力はココ👇

・新築スケルトンで自由度MAX!理想のお店づくりがゼロから可能✨

・1階路面で通行人の目にしっかり入る=広告効果もバッチリ👀

・大通り沿いだから昼夜問わず安定した人通りを確保!

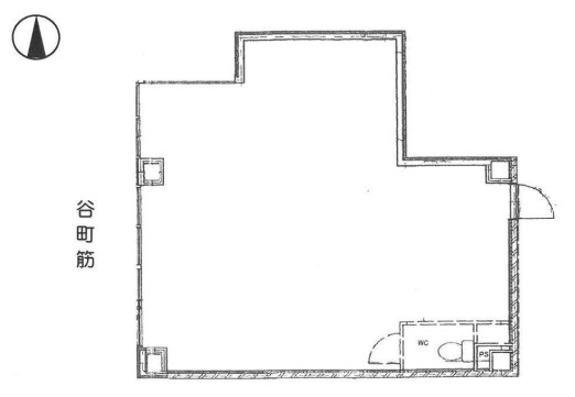
約12坪というサイズ感も絶妙で、

少人数オペレーションでもしっかり回せる効率的な店舗設計が可能◎

カフェ・物販・美容系・軽飲食など、幅広い業種に対応できます!

業種諸条件等お気軽にお問い合わせください。

 

※火災保険・保証会社加入要 ※飲食店不可(カフェ程度相談可)

※万一成約済みや貸主の都合で取引条件の変更があった場合はご了承下さい。

物件概要

所在地
大阪市中央区谷町
最寄り駅・徒歩
  • 大阪メトロ各線「谷町六丁目駅」徒歩1分
賃料
250,000円(税込価格275,000円)
共益費
敷金
-
礼金
55万円
面積
約12.68坪
坪単価
約22,917円
階数
1階
譲渡金
-
おすすめの業態
  • サービス・その他
  • 学習塾
  • 物販
  • 福祉・医療関係
  • 美容関係
  • 軽飲食
  • お電話にて物件IDをお伝え下さい。06-6766-2016
  • この物件のお問い合わせ
  • お電話にて物件IDをお伝え下さい。06-6766-2016
  • この物件のお問い合わせ

当社のご案内

店舗物件をお探しの方、お気軽にお立ち寄りください!

運営会社
株式会社 関西インベスト
所在地
〒542-0012
大阪府大阪市中央区谷町7-3-4新谷町第3ビル 1F
営業時間
9:30~18:00
※定休日:土曜日・日曜・祝日
電話番号
06-6766-2016
FAX番号
06-6766-2017
  • 06-6766-2016 06-6766-2016
  • 弊社へのお問い合わせ