店舗情報館 大阪の物件専門サイト

運営:「関西インベスト」  店舗物件ついてお気軽にご相談ください
  • 06-6766-2016
  • お問い合わせ・資料請求

Property Details

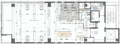
堀江ですぐ始めたい人にドンピシャ!!美容室居抜きでそのままお渡しします◎

物件ID:A013975

  • 印刷
  • 居抜き
  • 人気エリア
  • 繁華街

CHECK

感度の高いショップやカフェが集まるエリア「堀江」

トレンドに敏感な若年層から大人のこだわり層まで

幅広い集客が見込める立地の美容室まるっと居抜きです★

清潔感もあり設備も良好◎

美容室としてはもちろん、アイラッシュ・ネイル・エステなどの

ビューティー形態とも相性抜群です。

四ツ橋筋すぐでアメリカ村からのアクセスも良し。

堀江のブランドを活かして一気に認知度アップを狙えます(=゚ω゚)ノ

業種諸条件等お気軽にお問合せくださいませ。

 

※保証会社・火災保険加入要 ※定期借家契約5年

※雑費:1,100円 ※塵芥処理費:2,200円/月

※鍵交換代:33,000円 ※セキュリティカード:3,000円/枚

※契約事務手数料:11,000円 ※ガス無し

※写真は営業中の物になりますので、現状とは異なる場合がございます。
※万一成約済みや貸主の都合で取引条件の変更があった場合はご了承下さい。

物件概要

所在地
大阪市西区南堀江
最寄り駅・徒歩
  • 大阪メトロ四つ橋線「四ツ橋駅」徒歩2分
賃料
458,000円(税込価格503,800円)
共益費
130,000円(税込価格143,000円)
敷金
1ヶ月
礼金
2.2ヶ月
面積
約39.22坪
坪単価
約12,918円
階数
5階
譲渡金
希望有
おすすめの業態
  • サービス・その他
  • 物販
  • 美容関係
  • お電話にて物件IDをお伝え下さい。06-6766-2016
  • この物件のお問い合わせ
  • お電話にて物件IDをお伝え下さい。06-6766-2016
  • この物件のお問い合わせ

当社のご案内

店舗物件をお探しの方、お気軽にお立ち寄りください!

運営会社
株式会社 関西インベスト
所在地
〒542-0012
大阪府大阪市中央区谷町7-3-4新谷町第3ビル 1F
営業時間
9:30~18:00
※定休日:土曜日・日曜・祝日
電話番号
06-6766-2016
FAX番号
06-6766-2017
  • 06-6766-2016 06-6766-2016
  • 弊社へのお問い合わせ