店舗情報館 大阪の物件専門サイト

運営:「関西インベスト」  店舗物件ついてお気軽にご相談ください
  • 06-6766-2016
  • お問い合わせ・資料請求

Property Details

ロケーションで選ばれるお店(*^_^*)土佐堀川を一望できるワンフロアーテナント♪

物件ID:A013980

  • 印刷
  • スケルトン
  • オフィス街
  • 人気エリア
  • ワンフロア

CHECK

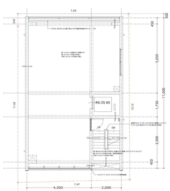
リバーサイドの贅沢すぎるワンフロアーテナント★

最大の魅力は、なんといってもリバービュー。

昼は開放的で爽やか、夜はしっとりと大人の雰囲気を演出してくれます。

ワンフロアー仕様で南北の両サイドがガラス張り。

コンセプトに合わせて思いのままに演出できるスケルトンでございます。

人気のリバーサイド物件はなかなか出ません…。

気になった今がチャンス!!

業種諸条件等お気軽にお問合せくださいませ。

 

※保証会社・火災保険加入要

※万一成約済みや貸主の都合で取引条件の変更があった場合はご了承下さい。

物件概要

所在地
大阪市西区土佐堀
最寄り駅・徒歩
  • 大阪メトロ四つ橋線「肥後橋駅」徒歩3分
賃料
285,000円(税込価格313,500円)
管理費
35,000円(税込価格38,500円)
敷金
2ヶ月
礼金
2.2ヶ月
面積
約17.63坪
坪単価
約18,441円
階数
3階
譲渡金
-
おすすめの業態
  • サービス・その他
  • 学習塾
  • 物販
  • 美容関係
  • お電話にて物件IDをお伝え下さい。06-6766-2016
  • この物件のお問い合わせ
  • お電話にて物件IDをお伝え下さい。06-6766-2016
  • この物件のお問い合わせ

当社のご案内

店舗物件をお探しの方、お気軽にお立ち寄りください!

運営会社
株式会社 関西インベスト
所在地
〒542-0012
大阪府大阪市中央区谷町7-3-4新谷町第3ビル 1F
営業時間
9:30~18:00
※定休日:土曜日・日曜・祝日
電話番号
06-6766-2016
FAX番号
06-6766-2017
  • 06-6766-2016 06-6766-2016
  • 弊社へのお問い合わせ