店舗情報館 大阪の物件専門サイト

運営:「関西インベスト」  店舗物件ついてお気軽にご相談ください
  • 06-6766-2016
  • お問い合わせ・資料請求

Property Details

日本橋オタロードすぐ♪好きが集まる街で、売れるお店を…ヽ(^o^)丿

物件ID:A013982

  • 印刷
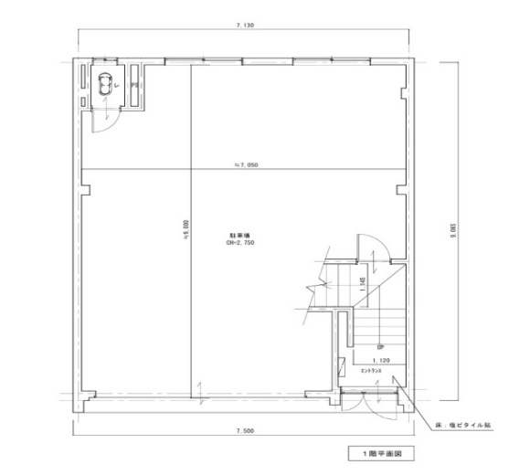
  • スケルトン
  • 路面店舗
  • 1階店舗
  • 人気エリア

CHECK

カルチャーと人が集まるエリアに、

視認性の良い路面店舗がございます!!

アニメ・ゲーム・サブカル好きが全国から集まる超人気スポットで

通天閣エリアへも徒歩圏内という立地。

しかも路面店&間口約5.5mのファサード。

通行人の視線をしっかりキャッチできます(*’▽’)

現状スケルトン渡しなので、内装は自由設計♪

インバウンドの取り込みを狙ってる方にもハマる、

ポテンシャル抜群の物件です。

業種諸条件等お気軽にお問合せくださいませ。

 

※保証会社・火災保険加入要 ※短期違約金:2年以内-賃料2ヶ月分

※万一成約済みや貸主の都合で取引条件の変更があった場合はご了承下さい。

物件概要

所在地
大阪市浪速区日本橋東
最寄り駅・徒歩
  • 大阪メトロ堺筋線「恵美須町駅」徒歩3分
賃料
400,000円(税込価格440,000円)
共益費
敷金
2ヶ月
礼金
1.1ヶ月
面積
約17.54坪
坪単価
約25,882円
階数
1階
譲渡金
-
おすすめの業態
  • サービス・その他
  • 学習塾
  • 物販
  • 美容関係
  • お電話にて物件IDをお伝え下さい。06-6766-2016
  • この物件のお問い合わせ
  • お電話にて物件IDをお伝え下さい。06-6766-2016
  • この物件のお問い合わせ

当社のご案内

店舗物件をお探しの方、お気軽にお立ち寄りください!

運営会社
株式会社 関西インベスト
所在地
〒542-0012
大阪府大阪市中央区谷町7-3-4新谷町第3ビル 1F
営業時間
9:30~18:00
※定休日:土曜日・日曜・祝日
電話番号
06-6766-2016
FAX番号
06-6766-2017
  • 06-6766-2016 06-6766-2016
  • 弊社へのお問い合わせ