店舗情報館 大阪の物件専門サイト

運営:「関西インベスト」  店舗物件ついてお気軽にご相談ください
  • 06-6766-2016
  • お問い合わせ・資料請求

Property Details

関西屈指の高級繁華街・北新地エリアにて、希少なラウンジ居抜き物件が登場。

物件ID:A014025

  • 印刷
  • 内装美品
  • 駅近
  • 居抜き
  • 歓楽街
  • 繁華街

CHECK

JR東西線「北新地駅」から徒歩3分という抜群のアクセスを誇り、ビジネスパーソンや富裕層の往来が多い好立地です。

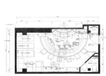
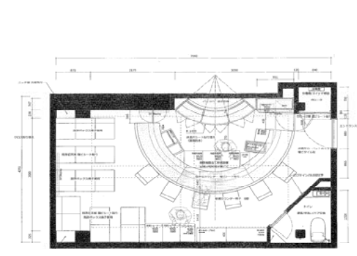
本物件は約10坪とコンパクトながら、無駄のないレイアウトで収益性の高い営業が可能。

少人数での運営や、落ち着いた空間を重視したラウンジ・バー業態に最適なサイズ感です。

初出店の方にも扱いやすく、固定費を抑えつつしっかり利益を狙える点が大きな魅力。

店内は内装美装のラウンジ居抜き。

上質で洗練された雰囲気がすでに整っており、大きな改装を必要とせずスムーズな開業が可能です。

内装コストを抑えながら、即戦力として営業をスタートできるため、スピード重視の出店にも最適。

レジャービル内の一室という立地は、北新地らしい“隠れ家的な特別感”を演出できるポイント。

常連客を重視した営業スタイルや、一見ではなく紹介制・会員制といった高付加価値業態にもマッチします。

北新地というブランド力と立地優位性を活かし、安定した集客が期待できる本物件。

コンパクトだからこそ実現できる高効率な店舗運営で、しっかりと利益を積み上げたい方におすすめです。

この条件の整った居抜き物件は流通が少なく、スピード勝負となることも想定されます。

ぜひお早めにご検討ください。

 

※ごみ処理代:4,950円(税込)/月 ※更新料:新賃料の1.1ヶ月

※看板代:22万税込)円 ※鍵交換代:2.2万円(税込)

保証会社・火災保険加入要

※写真は営業中の物になりますので、現状とは異なる場合がございます。
※万一成約済みや貸主の都合で取引条件の変更があった場合はご了承下さい。

物件概要

所在地
大阪市北区曾根崎新地
最寄り駅・徒歩
  • JR東西線「北新地駅」徒歩3分
賃料
260,000円(税込価格286,000円)
共益費
20,000円(税込価格22,000円)
保証金
なし
礼金
165万円
面積
約10坪
坪単価
約28,600円
階数
4階
譲渡金
-
おすすめの業態
  • スナック・ラウンジ
  • バー
  • 軽飲食
  • 飲食店
  • お電話にて物件IDをお伝え下さい。06-6766-2016
  • この物件のお問い合わせ
  • お電話にて物件IDをお伝え下さい。06-6766-2016
  • この物件のお問い合わせ

当社のご案内

店舗物件をお探しの方、お気軽にお立ち寄りください!

運営会社
株式会社 関西インベスト
所在地
〒542-0012
大阪府大阪市中央区谷町7-3-4新谷町第3ビル 1F
営業時間
9:30~18:00
※定休日:土曜日・日曜・祝日
電話番号
06-6766-2016
FAX番号
06-6766-2017
  • 06-6766-2016 06-6766-2016
  • 弊社へのお問い合わせ