店舗情報館 大阪の物件専門サイト

運営:「関西インベスト」  店舗物件ついてお気軽にご相談ください
  • 06-6766-2016
  • お問い合わせ・資料請求

Property Details

松屋町筋すぐ★使い分けできる2フロア物件登場です(^o^)/

物件ID:A014034

  • 印刷
  • 路面店舗
  • 1階店舗
  • 人気エリア

CHECK

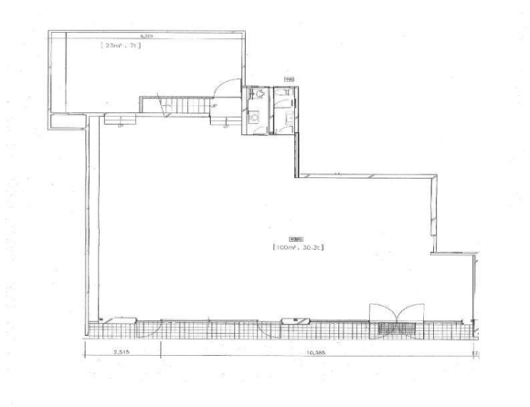
「ただ広い」だけじゃない。

1階と2階を戦略的に使い分けられるのがこの物件の最大の武器。

ず1階は路面に面しているので、視認性バツグン&集客力◎!

物販・ショールーム・受付スペースなど、“人を呼び込む役割”にピッタリ。

通りがかりのお客様をしっかりキャッチできる、まさに“お店の顔”になります!

そして2階は、落ち着いた空間を活かして

事務所・バックヤード・施術室・教室・撮影スペースなど自由自在✨

人目を気にせず使えるので、サービスの質を高める“裏方機能”として大活躍!

つまり、集客と運営をしっかり分けられる理想のレイアウトなんです。

大通りすぐでありながら落ち着きのある立地もポイントです(^^♪

業種諸条件等お気軽にお問い合わせください。

 

※火災保険・保証会社加入要 ※定期借家契約3年(再契約相談)

※飲食不可

※万一成約済みや貸主の都合で取引条件の変更があった場合はご了承下さい。

物件概要

所在地
大阪市中央区材木町
最寄り駅・徒歩
  • 大阪メトロ各線「堺筋本町駅」徒歩6分
  • 大阪メトロ中央線「谷町四丁目駅」徒歩8分
賃料
300,000円(税込価格330,000円)
共益費
敷金
1ヶ月
礼金
2.2ヶ月
面積
延約46坪
坪単価
約7,174円
階数
1-2階
譲渡金
-
おすすめの業態
  • サービス・その他
  • 学習塾
  • 物販
  • 美容関係
  • お電話にて物件IDをお伝え下さい。06-6766-2016
  • この物件のお問い合わせ
  • お電話にて物件IDをお伝え下さい。06-6766-2016
  • この物件のお問い合わせ

当社のご案内

店舗物件をお探しの方、お気軽にお立ち寄りください!

運営会社
株式会社 関西インベスト
所在地
〒542-0012
大阪府大阪市中央区谷町7-3-4新谷町第3ビル 1F
営業時間
9:30~18:00
※定休日:土曜日・日曜・祝日
電話番号
06-6766-2016
FAX番号
06-6766-2017
  • 06-6766-2016 06-6766-2016
  • 弊社へのお問い合わせ