店舗情報館 大阪の物件専門サイト

運営:「関西インベスト」  店舗物件ついてお気軽にご相談ください
  • 06-6766-2016
  • お問い合わせ・資料請求

Property Details

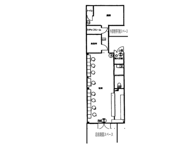
平野駅エリアに、雰囲気の良いカフェ居抜き・1階路面店が登場しました。

物件ID:A014046

  • 印刷
  • 1階店舗
  • 居抜き

CHECK

すぐにでも営業をスタートできる居抜き物件。

内装や設備を活かせば、初期コストを抑えつつスピーディーな開業が可能です。

カフェはもちろん、ベーカリーやスイーツ、軽飲食などにも相性の良い空間です。

約22坪と使い勝手の良い広さに加え

1階路面ならではの視認性と入りやすさも大きな魅力。

さらに、店舗前スペースの使用も相談可能で、プラスアルファの演出ができる点も見逃せません。

地域密着型の営業にも、こだわりのコンセプト店舗にもフィットするポテンシャル十分の一件。

落ち着いた客層を取り込みながら、長く愛される店舗づくりが目指せます。

居抜き×1階×前面スペース相談可という好条件は数が限られます。

気になった方は、ぜひお早めにご検討ください。

内覧のご相談も随時承っております。

 

※不可業種:臭気と煙を伴う業種、B型就労支援事業
※オール電化。ガス利用時はプロパンガス契約必要

※店前スペースは共用部もあるため、利用方法は相談

※セキュリティ(SECOM)付き

※写真は現状とは異なる場合がございます。
※万一成約済みや貸主の都合で取引条件の変更があった場合はご了承下さい。

物件概要

所在地
大阪市平野区平野市町
最寄り駅・徒歩
  • JR大和路線「平野駅」徒歩11分
賃料
200,000円(税込価格220,000円)
管理費
10,000円(税込価格11,000円)
敷金
1ヶ月
礼金
1.1ヶ月
面積
約22.68坪
坪単価
約10,000円
階数
1階
譲渡金
-
おすすめの業態
  • サービス・その他
  • テイクアウト
  • 倉庫
  • 学習塾
  • 物販
  • 福祉・医療関係
  • 美容関係
  • 軽飲食
  • お電話にて物件IDをお伝え下さい。06-6766-2016
  • この物件のお問い合わせ
  • お電話にて物件IDをお伝え下さい。06-6766-2016
  • この物件のお問い合わせ

当社のご案内

店舗物件をお探しの方、お気軽にお立ち寄りください!

運営会社
株式会社 関西インベスト
所在地
〒542-0012
大阪府大阪市中央区谷町7-3-4新谷町第3ビル 1F
営業時間
9:30~18:00
※定休日:土曜日・日曜・祝日
電話番号
06-6766-2016
FAX番号
06-6766-2017
  • 06-6766-2016 06-6766-2016
  • 弊社へのお問い合わせ