店舗情報館 大阪の物件専門サイト

運営:「関西インベスト」  店舗物件ついてお気軽にご相談ください
  • 06-6766-2016
  • お問い合わせ・資料請求

Property Details

すぐ始められる!!八尾の即戦力物件(=゚ω゚)ノ

物件ID:A014057

  • 印刷
  • 内装美品
  • 路面店舗
  • 1階店舗
  • 居抜き
  • 駐車場有

CHECK

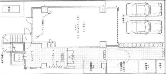
駅近ならではの安定感と地域密着型の集客見込みが嬉しい寿司店居抜き。

店内はカウンター席のほか、個室、座敷も完備。

幅広いシーンで対応できるレイアウトです。

厨房設備も大充実。

裏口倉庫もご利用いただけます。

さらに店舗前には駐車スペースもあり、車での来店ニーズにも対応可能。

住宅地と商業エリアがバランスよく混在し、

堅実に稼げる立地としても人気の立地。

ロケーション、そして美装の店内を、ぜひその目でお確かめください(^^♪

業種・諸条件等お気軽にお問い合わせください。

 

※火災保険・保証会社加入要

※写真は営業中の物になりますので、現状とは異なる場合がございます。
※万一成約済みや貸主の都合で取引条件の変更があった場合はご了承下さい。

物件概要

所在地
八尾市光町
最寄り駅・徒歩
  • 近鉄大阪線「近鉄八尾駅」徒歩4分
賃料
300,000円(税込価格330,000円)
共益費
敷金
-
礼金
99万円
面積
約20.99坪
坪単価
約16,500円
階数
1階
譲渡金
希望有
おすすめの業態
  • ダイニングバー
  • 軽飲食
  • 飲食店
  • お電話にて物件IDをお伝え下さい。06-6766-2016
  • この物件のお問い合わせ
  • お電話にて物件IDをお伝え下さい。06-6766-2016
  • この物件のお問い合わせ

当社のご案内

店舗物件をお探しの方、お気軽にお立ち寄りください!

運営会社
株式会社 関西インベスト
所在地
〒542-0012
大阪府大阪市中央区谷町7-3-4新谷町第3ビル 1F
営業時間
9:30~18:00
※定休日:土曜日・日曜・祝日
電話番号
06-6766-2016
FAX番号
06-6766-2017
  • 06-6766-2016 06-6766-2016
  • 弊社へのお問い合わせ